NREF Floor 5
NREF Floor 5
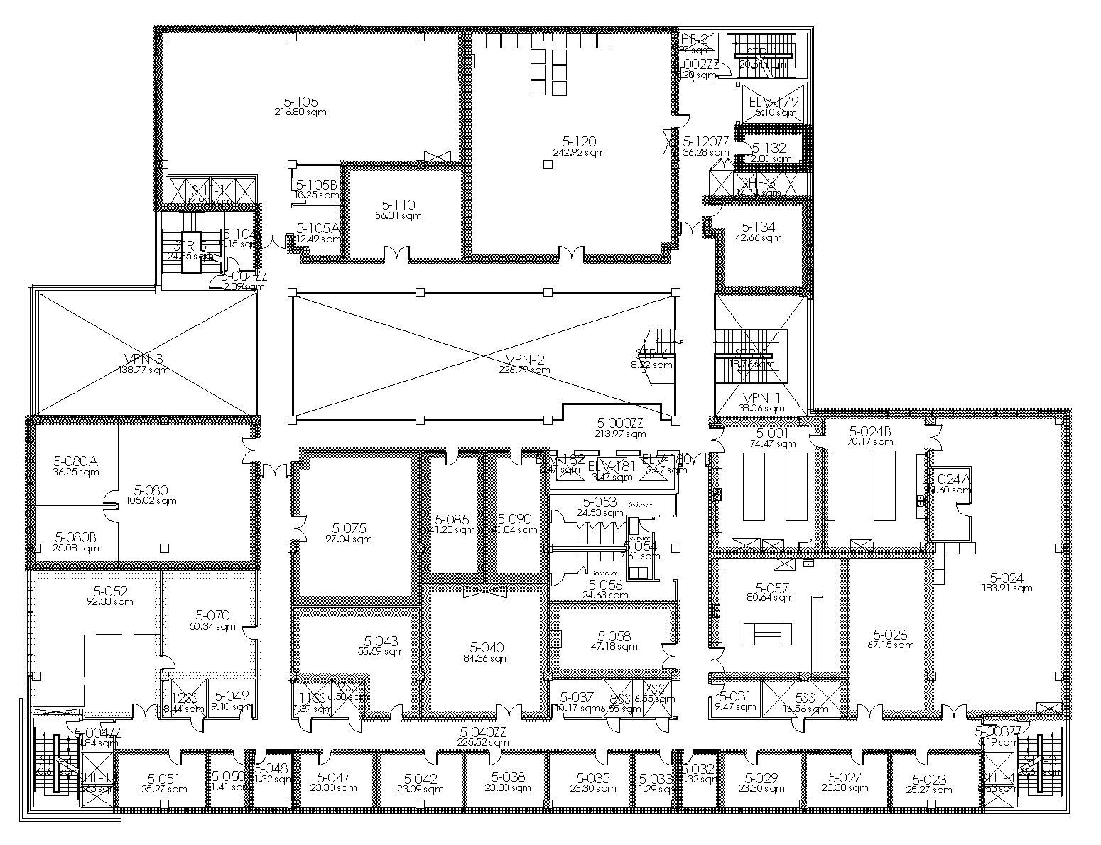
Overhead building plan for floor 5 of the NREF Building
5-001 Env Analytical Instrumentation Lab
5-023 Office
5-024 High Resolution Mass Spec Lab
5-024A Analytical Balance Room
5-024B Analytical Chemistry Lab
5-026 Env Equipment Storage
5-027 Office
5-029 Office
5-032 Office
5-033 Office
5-035 Office
5-038 Office
5-040 Air Quality Characterization Lab
5-042 Office
5-043 Centre for Smart Transportation
5-047 Office
5-048 Office
5-050 Office
5-051 Office
5-052 Geostatistics Research Lab
5-057 Analytical Instrumentation SEM Lab
5-058 Nanocolloids and Interfaces Lab
5-070 Centre for Computational Geostats
5-075 Sustainable and Resilient Smart Cities Laboratory
5-080 Construction Simulation Lab
5-080A Construction Simulation Lab
5-080B Construction Simulation Lab
5-085 Office
5-090 Office
5-105 High Pressure Temp Petro Lab
5-105A
5-105B
5-110 Drilling Fluids/Formation Damage Lab
5-120 Petroleum Geomechanics Lab
5-134 Office
| Room | Occupants | Department | Room Size (m2) | Biosafety Level | |
|---|---|---|---|---|---|
| 3-030 to 3-050 | Unassigned |
45 | No Safety Designation | ||
| 3-060 | Unassigned |
37 | No Safety Designation | ||
| 3-090 | Unassigned |
158 | No Safety Designation | ||
| 3-100 | 140 | No Safety Designation | |||
| 3-110 | 237 | No Safety Designation | |||
| 3-130 | 280 | No Safety Designation | |||
| L2-001A Stratified Flow Lab | 105 | No Safety Designation | |||
| L2-001B WR Loewen Wind Wave Lab | 105 | No Safety Designation | |||
| L2-010 Storage Civil Club | Unassigned |
6 | No Safety Designation | ||
| L2-011A | 11 | No Safety Designation | |||
| L2-016 Office | 47 | No Safety Designation | |||
| L2-024A Mining | 14 | No Safety Designation | |||
| L2-026 Centrifuge Control Room | 24 | No Safety Designation | |||
| L2-028 Geotech Centrifuge | 99 | No Safety Designation | |||
| L2-032 Geotech Soil Moisture Room | 27 | No Safety Designation | |||
| L2-034 Geotechnical General Purpose Lab | 103 | No Safety Designation | |||
| L2-110 Geotechnical Soils Lab | 139 | No Safety Designation | |||
| L2-114 Geotechnical Group Instrumentation | 21 | No Safety Designation | |||
| L2-116 3D Printer | 23 | No Safety Designation | |||
| L2-118 3D Printer | 25 | No Safety Designation | |||
| L2-132 Structures Storage | 13 | No Safety Designation | |||
| L1-010 | Unassigned |
6 | No Safety Designation | ||
| L1-012 | Unassigned |
6 | No Safety Designation | ||
| L1-016 Applied Env Geochem Research Facility | 110 | No Safety Designation | |||
| L1-016A | 76 | No Safety Designation | |||
| L1-016C Cold Room | 6 | No Safety Designation | |||
| L1-051 | Unassigned |
58 | No Safety Designation | ||
| L1-112 Sand Control Testing Lab | 138 | No Safety Designation | |||
| L1-114 Office | Unassigned |
65 | No Safety Designation | ||
| L1-124 Research Storage & Archives | 24 | No Safety Designation | |||
| L1-130 Survey School Equipment Storage | Unassigned |
70 | No Safety Designation | ||
| 4-010 | 242 | No Safety Designation | |||
| 4-020 | Unassigned |
242 | No Safety Designation | ||
| 4-080 | 143 | No Safety Designation | |||
| 4-110 | 101 | No Safety Designation | |||
| 1-023 Office | 23 | No Safety Designation | |||
| 1-024A-C Freezers | 31 | No Safety Designation | |||
| 1-027 | 22 | No Safety Designation | |||
| 1-029 | 22 | No Safety Designation | |||
| 1-036 | 22 | No Safety Designation | |||
| 1-038 | 22 | No Safety Designation | |||
| 1-041 Innovative Process Study Lab | 104 | No Safety Designation | |||
| 1-043 | Unassigned |
16 | No Safety Designation | ||
| 1-047 | Unassigned |
21 | No Safety Designation | ||
| 1-070 Construction Automation Lab | 48 | No Safety Designation | |||
| 1-090A Asphalt Storage | 9 | No Safety Designation | |||
| 1-100 Aggregate Lab | 29 | No Safety Designation | |||
| 1-100A Aggregate Equipment | 18 | No Safety Designation | |||
| 1-105 Concrete Research Lab | 84 | No Safety Designation | |||
| 1-105A | 14 | No Safety Designation | |||
| 1-106A | Unassigned |
9 | No Safety Designation | ||
| 1-106B | Unassigned |
8 | No Safety Designation | ||
| 1-110 Infrastructure - Underground Tech Lab | 90 | No Safety Designation | |||
| 1-120 Staff Room | Unassigned |
25 | No Safety Designation | ||
| 1-124 Repair Shop | Unassigned |
127 | No Safety Designation | ||
| 1-128 Geotech Staging Area | Unassigned |
48 | No Safety Designation | ||
| 1-128A Petroleum Freezer | 8 | No Safety Designation | |||
| 2-026A ENV Lab Storage | Unassigned |
50 | No Safety Designation | ||
| 2-022 Help Desk Office | Unassigned |
16 | No Safety Designation | ||
| 2-038 Civil Club Student Activity Room | 54 | No Safety Designation | |||
| 2-039 Civil Club Office | 23 | No Safety Designation | |||
| 2-042 Storage | 23 | No Safety Designation | |||
| 2-047 Mining Club Office | 22 | No Safety Designation | |||
| 2-048 Petroleum Club Office | 22 | No Safety Designation | |||
| 2-050 Office | Unassigned |
11 | No Safety Designation | ||
| 2-120 Printer/Server | Unassigned |
19 | No Safety Designation | ||
| 6-023 Office | Unassigned |
23 | No Safety Designation | ||
| 6-024 Advanced Waste Water Treatment | 165 | No Safety Designation | |||
| 6-024A Exhaust Room | 8 | No Safety Designation | |||
| 6-024B | 9 | No Safety Designation | |||
| 6-027 Office | 23 | No Safety Designation | |||
| 6-035 Office | Unassigned |
23 | No Safety Designation | ||
| 6-042 Office | 22 | No Safety Designation | |||
| 6-046 Office | 23 | No Safety Designation | |||
| 6-047 Office | 11 | No Safety Designation | |||
| 6-050 Office | 11 | No Safety Designation | |||
| 6-051 Office | 23 | No Safety Designation | |||
| 6-052 Industrial Waste Research Lab | 72 | No Safety Designation | |||
| 6-058 VR Lab | 45 | No Safety Designation | |||
| 6-100 Micro-organism Reduction Lab | 118 | No Safety Designation | |||
| 6-105 Microsensors Lab | 77 | No Safety Designation | |||
| 6-106 Office Space | Unassigned |
48 | No Safety Designation | ||
| 6-106A Office | 12 | No Safety Designation | |||
| 6-106B Office | 29 | No Safety Designation | |||
| 6-106C Office | 31 | No Safety Designation | |||
| 6-106D Office | 29 | No Safety Designation | |||
| 6-106E Office | 12 | No Safety Designation | |||
| 6-110 Biofilm Research Lab | 119 | No Safety Designation | |||
| 6-116 Soil Remediation Lab | 56 | No Safety Designation | |||
| 6-120 Supercritical Fluid Extraction Lab | 77 | No Safety Designation | |||
| 6-134 Office | 19 | No Safety Designation | |||
| 7-108 Office | Unassigned |
11 | No Safety Designation | ||
| 7-109 Mining Optimization Lab | 70 | No Safety Designation | |||
| 7-116 Enhanced Oil & Gas Recovery Lab | 90 | No Safety Designation | |||
| 7-120 Fluid Flow Through Porous Media Lab | 49 | No Safety Designation | |||
| 7-130 CETT-IRRF Research Lab | Unassigned |
31 | No Safety Designation | ||
| 7-130B Office | Unassigned |
8 | No Safety Designation | ||
| 7-130C Office | Unassigned |
8 | No Safety Designation | ||
| 7-130D Office | Unassigned |
8 | No Safety Designation | ||
| 7-130E Office | Unassigned |
8 | No Safety Designation | ||
| 4-030 to 4-050 | Unassigned |
45 | No Safety Designation | ||
| 4-060 | Unassigned |
37 | No Safety Designation | ||
| 1-024D-F Freezers | Unassigned |
50 | No Safety Designation | ||
| DICE 6-201 | 10 | No Safety Designation | |||
| DICE 6-203 | 13 | No Safety Designation | |||
| DICE 6-207 | 13 | No Safety Designation | |||
| DICE 6-209 | 13 | No Safety Designation | |||
| DICE 6-211 | 13 | No Safety Designation | |||
| DICE 6-215 | 13 | No Safety Designation | |||
| DICE 6-217 | 13 | No Safety Designation | |||
| DICE 6-219 | 12 | No Safety Designation | |||
| DICE 6-222 | 16 | No Safety Designation | |||
| DICE 6-224 | 15 | No Safety Designation | |||
| DICE 6-226 | 15 | No Safety Designation | |||
| DICE 6-230 | 15 | No Safety Designation | |||
| DICE 6-232 | 16 | No Safety Designation | |||
| DICE 6-233 | 16 | No Safety Designation | |||
| DICE 6-235 | 14 | No Safety Designation | |||
| DICE 6-237 | 14 | No Safety Designation | |||
| DICE 6-239 | 14 | No Safety Designation | |||
| DICE 6-241 | 14 | No Safety Designation | |||
| DICE 6-244 | 205 | No Safety Designation | |||
| DICE 6-245 | 13 | No Safety Designation | |||
| DICE 6-247 | 8 | No Safety Designation | |||
| DICE 6-251 | 16 | No Safety Designation | |||
| DICE 6-255 | 12 | No Safety Designation | |||
| DICE 6-257 | 13 | No Safety Designation | |||
| DICE 6-259 | 13 | No Safety Designation | |||
| DICE 6-261 | 13 | No Safety Designation | |||
| DICE 6-263 | 13 | No Safety Designation | |||
| DICE 6-265 | 13 | No Safety Designation | |||
| DICE 6-269 | 13 | No Safety Designation | |||
| DICE 6-271 | 13 | No Safety Designation | |||
| DICE 6-273 | 13 | No Safety Designation | |||
| DICE 6-277 | 13 | No Safety Designation | |||
| DICE 6-279 | 13 | No Safety Designation | |||
| DICE 6-281 | 13 | No Safety Designation | |||
| DICE 6-285 | 13 | No Safety Designation | |||
| DICE 6-287 | 13 | No Safety Designation | |||
| DICE 6-289 | 13 | No Safety Designation | |||
| DICE 6-293 | 13 | No Safety Designation | |||
| DICE 6-295 | 13 | No Safety Designation | |||
| DICE 6-302 | 13 | No Safety Designation | |||
| DICE 6-304 | 13 | No Safety Designation | |||
| DICE 6-306 | 13 | No Safety Designation | |||
| DICE 6-308 | 13 | No Safety Designation | |||
| DICE 6-321 | 13 | No Safety Designation | |||
| DICE 6-325 | 13 | No Safety Designation | |||
| DICE 6-327 | 13 | No Safety Designation | |||
| DICE 6-329 | 13 | No Safety Designation | |||
| DICE 6-330 | 14 | No Safety Designation | |||
| DICE 6-332 | 14 | No Safety Designation | |||
| DICE 6-340 | 14 | No Safety Designation | |||
| DICE 6-356 |
|
14 | No Safety Designation | ||
| DICE 6-358 | 14 | No Safety Designation | |||
| DICE 6-360 | Unassigned |
14 | No Safety Designation | ||
| DICE 6-361 | 224 | No Safety Designation | |||
| DICE 6-362 | 249 | No Safety Designation | |||
| DICE 6-362A | 20 | No Safety Designation | |||
| DICE 6-370 | 14 | No Safety Designation | |||
| DICE 6-372 | 14 | No Safety Designation | |||
| DICE 6-380 | 14 | No Safety Designation | |||
| DICE 7-221 | 13 | No Safety Designation | |||
| DICE 7-224 | 31 | No Safety Designation | |||
| DICE 7-227 | 13 | No Safety Designation | |||
| DICE 7-229 | 13 | No Safety Designation | |||
| DICE 7-232 | 16 | No Safety Designation | |||
| DICE 7-233 | 15 | No Safety Designation | |||
| DICE 7-235 | 13 | No Safety Designation | |||
| DICE 7-236 | 24 | No Safety Designation | |||
| DICE 7-237 | 13 | No Safety Designation | |||
| DICE 7-239 | 13 | No Safety Designation | |||
| DICE 7-241 | 13 | No Safety Designation | |||
| DICE 7-242 | 53 | No Safety Designation | |||
| DICE 7-243 | 13 | No Safety Designation | |||
| DICE 7-245 | 13 | No Safety Designation | |||
| DICE 7-247 | 8 | No Safety Designation | |||
| DICE 7-251 | 16 | No Safety Designation | |||
| DICE 7-255 | 12 | No Safety Designation | |||
| DICE 7-257 | 13 | No Safety Designation | |||
| DICE 7-259 | 13 | No Safety Designation | |||
| DICE 7-261 | 13 | No Safety Designation | |||
| DICE 7-263 | 13 | No Safety Designation | |||
| DICE 7-265 | 13 | No Safety Designation | |||
| DICE 7-269 | 14 | No Safety Designation | |||
| DICE 7-271 | 13 | No Safety Designation | |||
| DICE 7-273 | 13 | No Safety Designation | |||
| DICE 7-279 | 13 | No Safety Designation | |||
| DICE 7-281 | 13 | No Safety Designation | |||
| DICE 7-285 | 13 | No Safety Designation | |||
| DICE 7-289 | 13 | No Safety Designation | |||
| DICE 7-292 | 13 | No Safety Designation | |||
| DICE 7-293 | 13 | No Safety Designation | |||
| DICE 7-295 | 13 | No Safety Designation | |||
| DICE 7-297 | 23 | No Safety Designation | |||
| DICE 7-304 | 13 | No Safety Designation | |||
| DICE 7-320 | 13 | No Safety Designation | |||
| DICE 7-321 | 13 | No Safety Designation | |||
| DICE 7-324 | 14 | No Safety Designation | |||
| DICE 7-325 | 13 | No Safety Designation | |||
| DICE 7-326 | 13 | No Safety Designation | |||
| DICE 7-327 | 13 | No Safety Designation | |||
| DICE 7-329 | 13 | No Safety Designation | |||
| DICE 7-330 | 13 | No Safety Designation | |||
| DICE 7-332 | 13 | No Safety Designation | |||
| DICE 7-340 | 13 | No Safety Designation | |||
| DICE 7-348 | 14 | No Safety Designation | |||
| DICE 7-349 | 14 | No Safety Designation | |||
| DICE 7-351 | 13 | No Safety Designation | |||
| DICE 7-352 | 13 | No Safety Designation | |||
| DICE 7-354 | 13 | No Safety Designation | |||
| DICE 7-355 | 12 | No Safety Designation | |||
| DICE 7-356 | 13 | No Safety Designation | |||
| DICE 7-358 | 13 | No Safety Designation | |||
| DICE 7-360 | 13 | No Safety Designation | |||
| DICE 7-361 | 13 | No Safety Designation | |||
| DICE 7-364 | 13 | No Safety Designation | |||
| DICE 7-365 | 13 | No Safety Designation | |||
| DICE 7-367 | 13 | No Safety Designation | |||
| DICE 7-369 | 13 | No Safety Designation | |||
| DICE 7-370 | 13 | No Safety Designation | |||
| DICE 7-371 | 13 | No Safety Designation | |||
| DICE 7-372 | 13 | No Safety Designation | |||
| DICE 7-380 | 13 | No Safety Designation | |||
| DICE 7-381 | 13 | No Safety Designation | |||
| DICE 7-385 | 13 | No Safety Designation | |||
| DICE 7-387 | 13 | No Safety Designation | |||
| 5-023 Office | 22 | No Safety Designation | |||
| 5-024B Analytical Chemistry Lab | 71 | No Safety Designation | |||
| 5-026 Env Equipment Storage | 64 | No Safety Designation | |||
| 5-040 Air Quality Characterization Lab | 82 | No Safety Designation | |||
| 5-043 Centre for Smart Transportation | 54 | No Safety Designation | |||
| 5-052 Geostatistics Research Lab | 89 | No Safety Designation | |||
| 5-057 Analytical Instrumentation SEM Lab | 80 | No Safety Designation | |||
| 5-058 Nanocolloids and Interfaces Lab | 46 | No Safety Designation | |||
| 5-080 Construction Simulation Lab | 101 | No Safety Designation | |||
| 5-080A Construction Simulation Lab | 36 | No Safety Designation | |||
| 5-080B Construction Simulation Lab | 24 | No Safety Designation | |||
| 5-085 Office | 40 | No Safety Designation | |||
| 5-090 Office | 40 | No Safety Designation | |||
| 5-105 High Pressure Temp Petro Lab | 212 | No Safety Designation | |||
| 5-105A | 12 | No Safety Designation | |||
| 5-105B | 10 | No Safety Designation | |||
| 5-110 Drilling Fluids/Formation Damage Lab | 55 | No Safety Designation | |||
| 5-120 Petroleum Geomechanics Lab | 235 | No Safety Designation | |||
| 5-134 Office |
|
41 | No Safety Designation | ||
| 2-010A EnvE UG Course Storage | Unassigned |
24 | No Safety Designation | ||
| 3-010 Water Research Lab | 221 | No Safety Designation | |||
| 3-020 Air Research Lab | 258 | No Safety Designation | |||
| 3-080 | 140 | No Safety Designation | |||
| L2-112 FoE Core Robotics Lab | N/A |
136 | No Safety Designation | ||
| L1-001: WR Grad Projects Storage | 49 | No Safety Designation | |||
| L1-002 Office | 48 | No Safety Designation | |||
| L1-006 Office | 22 | No Safety Designation | |||
| L1-008 Office | 44 | No Safety Designation | |||
| 5-001 Env Analytical Instrumentation Lab | 73 | No Safety Designation | |||
| 5-024 High Resolution Mass Spec Lab | 14 | No Safety Designation | |||
| 5-024A Analytical Balance Room | 14 | No Safety Designation | |||
| 5-032 Office | 10 | No Safety Designation | |||
| 5-075 Sustainable and Resilient Smart Cities Laboratory | 94 | No Safety Designation | |||
| L2-001 Blench Hydraulics Lab |
|
991 | No Safety Designation | ||
| 4-140 | Steel Center / CIC |
141 | No Safety Designation | ||
| 4-120 | Construction Innovation Center |
135 | No Safety Designation | ||
| 4-130 | Construction Innovation Center |
135 | No Safety Designation | ||
| 1-024 Canadian Rail Research Lab | 234 | No Safety Designation | |||
| 1-051 Computational Lab | 21 | No Safety Designation | |||
| 1-057 Mine Waste Lab | 158 | No Safety Designation | |||
| 1-090 Asphalt Teaching Lab | 139 | No Safety Designation | |||
| 1-122 Experiential and Professional Education (EPE) Space | 39 | No Safety Designation | |||
| 6-001 ENV Central Service Lab | 53 | No Safety Designation | |||
| 6-001A Biomed Lab | 50 | No Safety Designation | |||
| 6-001B | 10 | No Safety Designation | |||
| 6-001C Water Membrane Lab | 32 | No Safety Designation | |||
| 6-001D Waste Water Membrane Lab | 33 | No Safety Designation | |||
| 6-033 Office | 11 | No Safety Designation | |||
| 6-041 EnvE Analytical Lab + FoE Water Research Center | 191 | No Safety Designation | |||
| 6-041A Ozone and UV Treatment Lab | 19 | No Safety Designation | |||
| 6-052A High Res. Mass Spectrometry Lab | 46 | No Safety Designation | |||
| 7-134 Office | 43 | No Safety Designation | |||
| 4-070 | BioMedical Engineering |
161 | No Safety Designation | ||
| DICE 7-209 | 13 | No Safety Designation | |||
| DICE 7-211 | 13 | No Safety Designation | |||
| DICE 7-215 | 13 | No Safety Designation | |||
| DICE 7-217 | 13 | No Safety Designation | |||
| DICE 7-302 | 13 | No Safety Designation | |||
| DICE 7-306 | 13 | No Safety Designation | |||
| DICE 7-308 | 13 | No Safety Designation | |||
| 3-070 | 161 | No Safety Designation | |||
| L2-011 Mining | 108 | No Safety Designation | |||
| L2-014: Jet Grouting Lab | 47 | No Safety Designation | |||
| L2-020 Structure Strength of Materials Lab | 124 | No Safety Designation | |||
| L2-022 Mining Surface Mining Lab | 196 | No Safety Designation | |||
| L2-022A | 45 | No Safety Designation | |||
| L2-024 Mining Rock Prep Room | 87 | No Safety Designation | |||
| L2-030 Geotech Undergrad Teaching Lab | 190 | No Safety Designation | |||
| L2-040 Soil Prep Room | 56 | No Safety Designation | |||
| L2-120 Water Resources Undergrad Teaching Lab | 251 | No Safety Designation | |||
| L1-050 - CEE+MP Storage | 25 | No Safety Designation | |||
| L1-110 Sustainable Mining Lab | 109 | No Safety Designation | |||
| L1-120 Geotech Instrument Lab | 192 | No Safety Designation | |||
| L1-125 Grad Student Office | 32 | No Safety Designation | |||
| 5-027 Office | 22 | No Safety Designation | |||
| 5-029 Office | 22 | No Safety Designation | |||
| 5-033 Office | 11 | No Safety Designation | |||
| 5-035 Office | 22 | No Safety Designation | |||
| 5-038 Office | 22 | No Safety Designation | |||
| 5-042 Office | 22 | No Safety Designation | |||
| 5-047 Office | 22 | No Safety Designation | |||
| 5-048 Office | 11 | No Safety Designation | |||
| 5-050 Office | 11 | No Safety Designation | |||
| 5-051 Office | Unassigned |
22 | No Safety Designation | ||
| 5-070 Centre for Computational Geostats | 50 | No Safety Designation | |||
| 4-090 | 158 | No Safety Designation | |||
| 4-100 | 140 | No Safety Designation | |||
| 1-032 | 11 | No Safety Designation | |||
| 1-035 | 11 | No Safety Designation | |||
| 1-042 | 22 | No Safety Designation | |||
| 1-048 | 10 | No Safety Designation | |||
| 1-050 | 10 | No Safety Designation | |||
| 1-052 Subsurface Energy Storage and Production | 180 | No Safety Designation | |||
| 1-060 | Unassigned |
33 | No Safety Designation | ||
| 1-080 - Steel Center AI + Emerging Tech Projects | 51 | No Safety Designation | |||
| 1-106 Undergrad Concrete Teaching Lab | Unassigned |
166 | No Safety Designation | ||
| 1-115 Subsurface Energy Storage and Production | 103 | No Safety Designation | |||
| 1-143 Classroom | N/A (Centrally Controlled) |
111 | No Safety Designation | ||
| 2-001 Classroom | N/A (Centrally Controlled) |
198 | No Safety Designation | ||
| 2-003 Classroom | N/A (Centrally Controlled) |
198 | No Safety Designation | ||
| 2-010 ENV Undergrad Teaching Lab | Unassigned |
192 | No Safety Designation | ||
| 2-016 Classroom | N/A (Centrally Controlled) |
64 | No Safety Designation | ||
| 2-020 Classroom | N/A (Centrally Controlled) |
62 | No Safety Designation | ||
| 2-026 Teaching Prep Room | 52 | No Safety Designation | |||
| 2-030 ENV Grad Teaching Lab | 133 | No Safety Designation | |||
| 2-043 Mine Design Computational Lab | 113 | No Safety Designation | |||
| 2-051 Office | 12 | No Safety Designation | |||
| 2-052 Petroleum Undergrad Teaching Lab | 308 | No Safety Designation | |||
| 2-080 Classroom | N/A - Department Controlled |
95 | No Safety Designation | ||
| 2-090 Classroom | N/A - Centrally Controlled |
96 | No Safety Designation | ||
| 2-117 Computer Lab | N/A - Centrally Controlled |
98 | No Safety Designation | ||
| 2-118 Caterpillar Mining Engineering Design And Project Lab | N/A - Department Controlled |
154 | No Safety Designation | ||
| 2-122 Classroom | N/A - Department Controlled |
94 | No Safety Designation | ||
| 2-125 Computer Lab | N/A - Centrally Controlled |
99 | No Safety Designation | ||
| 2-127 Classroom | N/A - Centrally Controlled |
98 | No Safety Designation | ||
| 6-002 CEEGSA Office | N/A |
24 | No Safety Designation | ||
| 6-026 ENV Microbiology Lab | 83 | No Safety Designation | |||
| 6-029 Office | 23 | No Safety Designation | |||
| 6-030 Office | 11 | No Safety Designation | |||
| 6-038 Office | Unassigned |
23 | No Safety Designation | ||
| 6-041B Service Lab | 37 | No Safety Designation | |||
| 6-048 Cold Room | 156 | No Safety Designation | |||
| 7-105 Office | 19 | No Safety Designation | |||
| 7-107 Graduate Computer Lab | 46 | No Safety Designation | |||
| 7-110 Petro Advanced Comput & Visualization | 67 | No Safety Designation | |||
| DICE 6-243 | Mining |
13 | No Safety Designation | ||
| DICE 6-297: CEE+MP Reading Room | 23 | No Safety Designation | |||
| DICE 7-226 | 15 | No Safety Designation | |||
| DICE 7-230 | 15 | No Safety Designation | |||
| DICE 7-277 | 13 | No Safety Designation | |||
| DICE 7-287 | 13 | No Safety Designation | |||
| DICE 7-366 | 13 | No Safety Designation | |||
| DICE 7-368 | 13 | No Safety Designation | |||
| DICE 7-389 | 13 | No Safety Designation | |||
| Room | Occupants | Department | Room Size (m2) | Biosafety Level |
